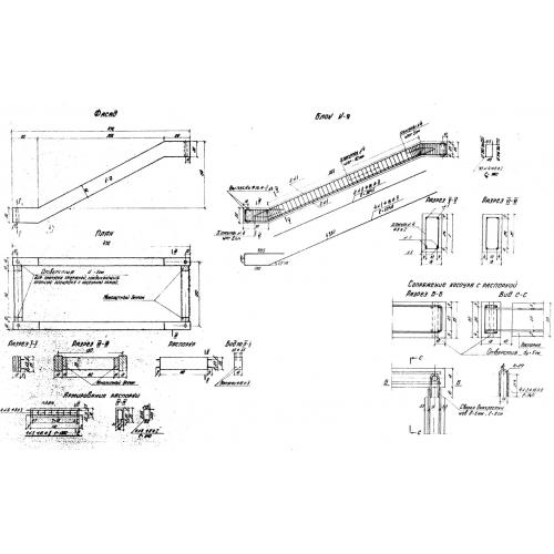
К 9
Характеристики изделия:
| Параметр | Значение |
|---|---|
| длина | 4720 мм |
| ширина | 180 мм |
| высота | 1890 мм |
| масса | 800 кг |
| нормативный документ | ТП 501-166 |
Цена:
Рассчитать стоимостьК 9 Косоуры по Типовому проекту ТП 501-166.
| Параметр | Значение |
|---|---|
| длина | 4720 мм |
| ширина | 180 мм |
| высота | 1890 мм |
| масса | 800 кг |
| нормативный документ | ТП 501-166 |
К 9 Косоуры по Типовому проекту ТП 501-166.
