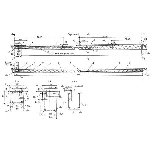
СВ 95

Чертеж изделия:
Характеристики изделия:
ПараметрЗначение
длина9500 мм
ширина185 мм
высота265 мм
масса900 кг
нормативный документШифр 20.0139

СВ 95 Стойки вибрированные по Шифру 20.0139.