ПСЛ 30

Чертеж изделия:
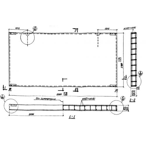
Характеристики изделия:
ПараметрЗначение
длина5980 мм
ширина2985 мм
высота300 мм
масса7100 кг
нормативный документСерия СТ 02-33

ПСЛ 30 Панели наружные стеновые из легкого бетона Серия СТ 02-33.