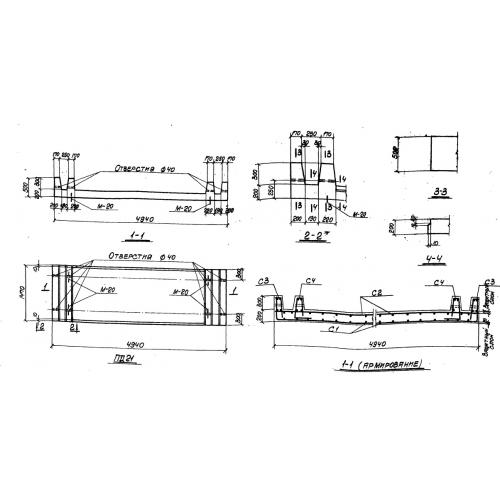
ПД 21

Чертеж изделия:
Характеристики изделия:
ПараметрЗначение
длина1470 мм
ширина4940 мм
высота500 мм
вес4500 кг
серияХТР 1-1

ПД 21 Плиты днища по серии ХТР 1-1.