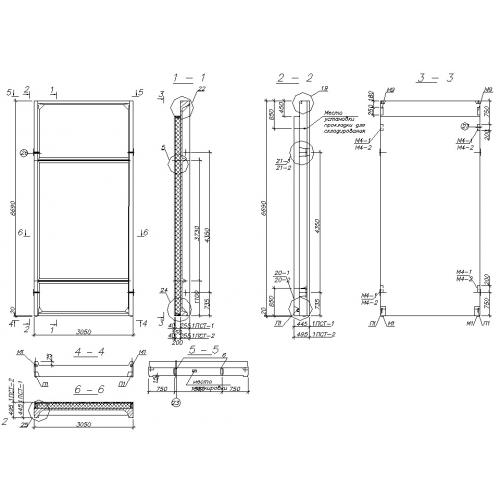
1ПСТ 1 Стеновые панели

Чертеж изделия:
Характеристики изделия:
ПараметрЗначение
длина3050 мм
ширина445 мм
высота6690 мм
масса4590 кг
нормативный документСерия 7075-М

1ПСТ 1   Трехслойные стеновые панели торцевые по Серии 7075-М.