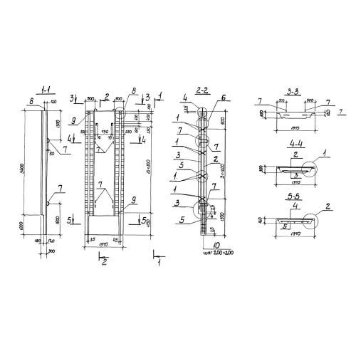
3ПС 54

Чертеж изделия:
Характеристики изделия:
ПараметрЗначение
длина1970 мм
ширина300 мм
высота6400 мм
вес7400 кг
серия3.902.1-12

3ПС 54 Стеновые панели для способа "стена в грунте" по серии 3.902.1-12.