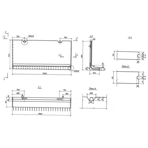
Г 15.30

Чертеж изделия:
Характеристики изделия:
ПараметрЗначение
длина3000 мм
ширина680 мм
высота1500 мм
вес1650 кг
серия3.820.1-73

Г 15.30 Г-образная конструкция для водохозяйственного строительства по серии 3.820.1-73.