СБ-35

Чертеж изделия:
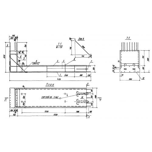
Характеристики изделия:
ПараметрЗначение
длина1000 мм
ширина1550 мм
высота4130 мм
масса4000 кг
нормативный документСерия 3.820.1-29

СБ-35 Стеновые блоки по Серии 3.820.1-29.