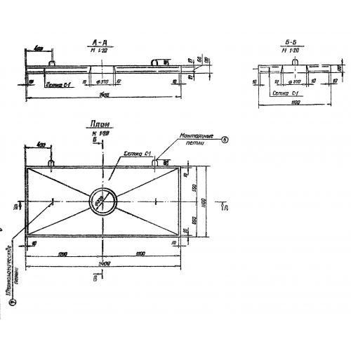
ПУ 3.0-6.0
Характеристики изделия:
| Параметр | Значение |
|---|---|
| длина | 2400 мм |
| ширина | 1100 мм |
| высота | 120 мм |
| вес | 750 кг |
| серия | 3.820-9 |
Цена:
Рассчитать стоимостьПУ 3.0-6.0 Плиты упорные по серии 3.820-9.
| Параметр | Значение |
|---|---|
| длина | 2400 мм |
| ширина | 1100 мм |
| высота | 120 мм |
| вес | 750 кг |
| серия | 3.820-9 |
ПУ 3.0-6.0 Плиты упорные по серии 3.820-9.
