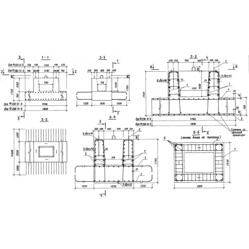
Ф 250-51

Чертеж изделия:
Характеристики изделия:
ПараметрЗначение
длина4000 мм
ширина2500 мм
высота1750 мм
вес13200 кг
серия3.503.1-76

Ф 250-51 Симметричные блоки фундамента по серии 3.503.1-76.