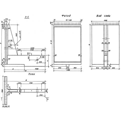
БТ 3

Чертеж изделия:
Характеристики изделия:
ПараметрЗначение
длина2850 мм
ширина1980 мм
высота2850 мм
вес2800 кг
серия3.503.1-67

БТ 3 Блоки контрфорсные таврового сечения по серии 3.503.1-67.