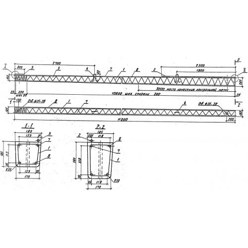
СВ 110
Характеристики изделия:
| Параметр | Значение |
|---|---|
| длина | 11000 мм |
| ширина | 185 мм |
| высота | 280 мм |
| масса | 1125 кг |
| нормативный документ | Серия 3.407.1-143 |
Цена:
Рассчитать стоимостьСВ 110 Стойки железобетонные Серия 3.407.1-143.
| Параметр | Значение |
|---|---|
| длина | 11000 мм |
| ширина | 185 мм |
| высота | 280 мм |
| масса | 1125 кг |
| нормативный документ | Серия 3.407.1-143 |
СВ 110 Стойки железобетонные Серия 3.407.1-143.
