Б 30
Характеристики изделия:
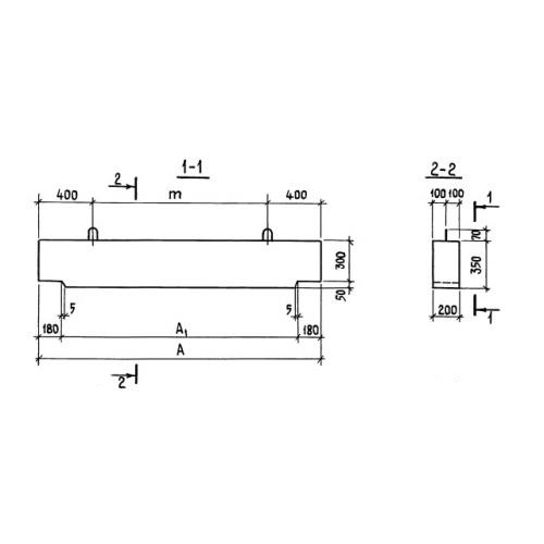
| Параметр | Значение |
|---|---|
| длина | 3360 мм |
| ширина | 200 мм |
| высота | 350 мм |
| масса | 580 кг |
| нормативный документ | Серия 3.006.1-3/83 |
Цена:
Рассчитать стоимостьБ 30 Балки тоннелей Серия 3.006.1-3/83.
| Параметр | Значение |
|---|---|
| длина | 3360 мм |
| ширина | 200 мм |
| высота | 350 мм |
| масса | 580 кг |
| нормативный документ | Серия 3.006.1-3/83 |
Б 30 Балки тоннелей Серия 3.006.1-3/83.
