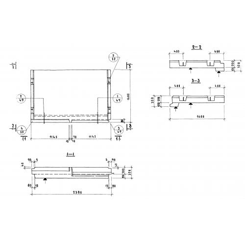
ЛП-24.15

Чертеж изделия:
Характеристики изделия:
ПараметрЗначение
длина2380 мм
ширина1600 мм
высота320 мм
вес1940 кг
серия1.152-7

ЛП-24.15 Лестничные площадки ребристые по серии 1.152-7.