1ПБ 16 перемычки брусковые

Чертеж изделия:
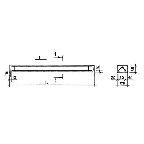
Характеристики изделия:
ПараметрЗначение
длина1550 мм
ширина120 мм
высота65 мм
масса30 кг
нормативный документСерия 1.038.1-1

1ПБ 16  Перемычки брусковые Серия 1.038.1-1.