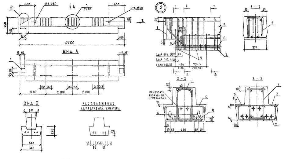
РДП 4.68 ригели

Чертеж изделия:
Характеристики изделия:
ПараметрЗначение
длина6760 мм
ширина565 мм
высота450 мм
масса3120 кг
нормативный документСерия 1.020-1/83

РДП 4.68  Ригели с двумя симметричными полками для опоры многопустотных плит покрытия Серия 1.020-1/83.