БФ 65

Чертеж изделия:
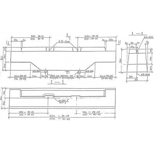
Характеристики изделия:
ПараметрЗначение
длина6460 мм
ширина510 мм
высота580 мм
масса3200 кг
нормативный документАльбом РС 1251-93

БФ 65 Балки фундаментные Альбом РС 1251-93.