ЛМ 36.15
Характеристики изделия:
| Параметр | Значение |
|---|---|
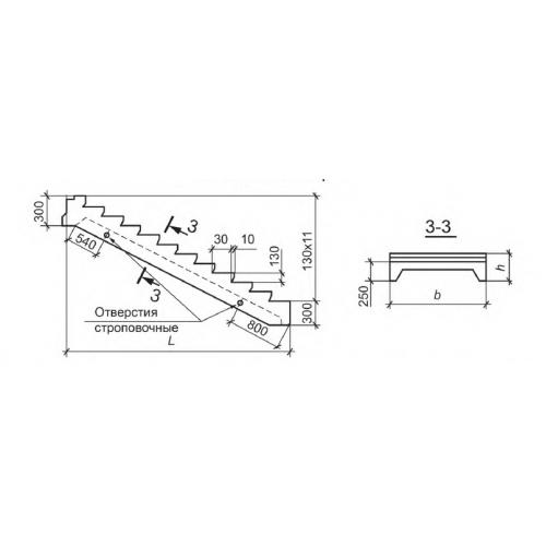
| длина | 3600 мм |
| ширина | 1490 мм |
| высота | 1730 мм |
| масса | 1950 кг |
| нормативный документ | ГОСТ 24155-2016 |
Цена:
Рассчитать стоимостьЛМ 63.15 Лестничные марши по ГОСТ 24155-2016.
| Параметр | Значение |
|---|---|
| длина | 3600 мм |
| ширина | 1490 мм |
| высота | 1730 мм |
| масса | 1950 кг |
| нормативный документ | ГОСТ 24155-2016 |
ЛМ 63.15 Лестничные марши по ГОСТ 24155-2016.
